Gleisskizzen Linie 80

Image
Aufnahmezeitpunkt
1905
Dateigröße
119076
Breite
560
Höhe
795
Image
Aufnahmezeitpunkt
1909
Dateigröße
120967
Breite
795
Höhe
560
Image
Aufnahmezeitpunkt
1904
Dateigröße
100211
Breite
839
Höhe
560

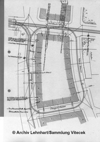
Tag allerseits!

Wie gewünscht Gleisskizzen von der Stockgleisanlage Friedensgasse,
die ja praktisch nicht verändert wurde (12.1.1904 bis 26.4.1970);
sowie von der Schleife Rotundenbrücke (20.2.1905 bis 26.4.1970).
Letztere wurde nach Eröffnung der Linie 80 mit 2.9.1909 umgebaut.

lG

Michael

Antworten